• Varde – Esbjerg – Ølgod
Ølgod

33 nye hjem –  lige midt i Ølgod

Lige nu spirer Østerbro i Ølgod. På den gamle Østerbro-grund skabes der et skønt område til 33 lejligheder, hvor familier og seniorer får mulighed for at skabe et hjem.

Østerbro – spirer i Ølgod

Bolig Syd Vest er i gang med at udvikle et nyt boligprojekt på Østerbro i Ølgod, hvor der opføres 33 moderne lejeboliger. Projektet er en del af vores arbejde med at skabe gode, attraktive boliger i lokalområdet og give flere mulighed for at bo i Ølgod.

Attraktiv beliggenhed i Ølgod

Østerbro ligger centralt i Ølgod, tæt på både indkøb, skole, daginstitutioner og byens øvrige faciliteter. Området er kendt for sit rolige boligmiljø og gode adgang til natur og grønne områder.

Med den centrale placering bliver de nye boliger et oplagt valg for både familier, seniorer og enlige, der ønsker at bo i en by med et stærkt lokalsamfund og gode transportmuligheder.

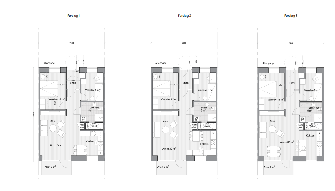
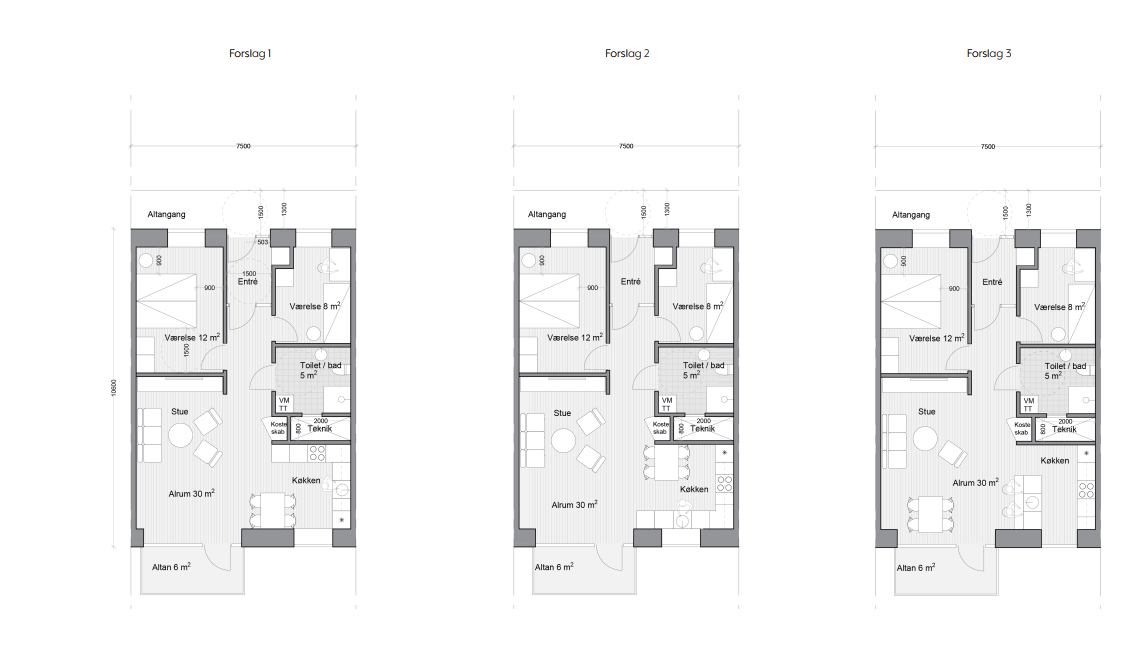
33 nye boliger med fokus på kvalitet

Boligprojektet på Østerbro kommer til at bestå af 33 moderne lejeboliger, som er indrettet med fokus på funktionalitet, komfort og gode planløsninger.

Boligerne bliver opført i moderne materialer og med løsninger, der skaber lyse og indbydende hjem. Der vil være fokus på:

  • gode og funktionelle planløsninger

  • moderne køkken og bad

  • energieffektive løsninger

  • gode udearealer til beboerne

Projektet skal være med til at skabe et attraktivt boligområde, hvor både nye og nuværende borgere i Ølgod kan finde et godt hjem.

Styrker udviklingen i Ølgod

Med opførelsen af de 33 boliger på Østerbro ønsker Bolig Syd Vest at bidrage til den fortsatte udvikling af Ølgod som en attraktiv by at bo i. Nye boliger giver flere muligheder for tilflyttere og skaber samtidig gode rammer for nuværende borgere, der ønsker en bolig, der passer til deres behov.

Vi glæder os til at følge projektet og til at kunne byde nye beboere velkommen i de kommende boliger.

Hvis I ønsker mere information eller at blive skrevet op til en bolig, kontakt da vores administration DAB-Lejerbo på tlf. 7732 0000.

Bolig Syd Vest

Se vores brochure

Vi har fået lavet en brochure, hvori du kan finde mere information om Østerbro.

Østerbro

Interesseret?

Er du interesseret i at høre mere om Østerbro, eller allerede nu, ønsker at blive skrevet op til en bolig, så kontakt os endelig for at høre nærmere.